大阪市西淀川区大和田4丁目の倉庫

3,280万円

大阪府大阪市西淀川区大和田4丁目

阪神本線「千船」駅徒歩9分

阪神電鉄阪神なんば「福」駅徒歩15分

価格
3,280万円
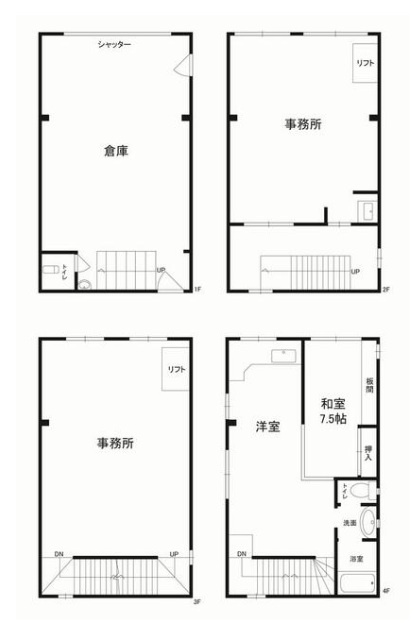
建物面積
50.90坪(168.28㎡)
所在地
大阪府大阪市西淀川区大和田4丁目
築年
1994年9月(築31年)
駐車
-
交通

阪神本線千船」駅 徒歩9分

阪神電鉄阪神なんば」駅 徒歩15分

大阪市西淀川区大和田4丁目の倉庫の基本情報

物件名
大阪市西淀川区大和田4丁目の倉庫
価格
3,280万円
築年月
1994年9月(築31年)
総戸数
-
所在地
大阪府大阪市西淀川区大和田4丁目
交通

阪神本線千船」駅 徒歩9分

阪神電鉄阪神なんば」駅 徒歩15分

大阪市西淀川区大和田4丁目の倉庫の詳細情報

設備条件
設備(その他)
    -
駐車場/月額
-/-
土地権利
所有権
国土法届出
不要
用途地域
近隣商業
戸数
- / -
管理形態
-
管理員の勤務形態
-
管理会社
-
取引態様
仲介
引渡し
相談

大阪市西淀川区大和田4丁目の倉庫で募集中の物件

  1. 4階建

    50.90坪 (168.28㎡)

    3,280万円(64.44万円/坪)

よく見られている物件

  1. 八尾市水越6丁目

    - (167.06㎡)

    4,568万円

  2. 枚方市招提大谷3丁目

    - (468.54㎡)

    8,500万円

  3. 岸和田市内畑町

    - (293.89㎡)

    4,740万円

  4. 大阪市城東区東中浜1丁目

    - (673.23㎡)

    11,800万円

大阪市西淀川区大和田4丁目の倉庫

お気軽にお問い合わせください

無料お問い合わせ

株式会社ステージ

06-6356-4555

9:30~19:00

(休:日曜、祝日)