大阪市阿倍野区阪南町5丁目の倉庫

7,180万円

大阪府大阪市阿倍野区阪南町5丁目

地下鉄御堂筋線「西田辺」駅徒歩4分

阪和線「鶴ケ丘」駅徒歩10分

価格
7,180万円
建物面積
46.05坪(152.25㎡)
所在地
大阪府大阪市阿倍野区阪南町5丁目
築年
1993年3月(築33年)
駐車
-
交通

地下鉄御堂筋線西田辺」駅 徒歩4分

阪和線鶴ケ丘」駅 徒歩10分

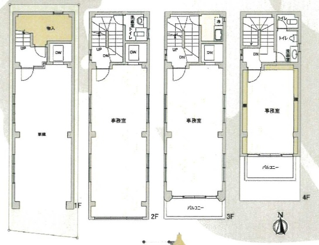
大阪市阿倍野区阪南町5丁目の倉庫の基本情報

物件名
大阪市阿倍野区阪南町5丁目の倉庫
価格
7,180万円
築年月
1993年3月(築33年)
総戸数
-
所在地
大阪府大阪市阿倍野区阪南町5丁目
交通

地下鉄御堂筋線西田辺」駅 徒歩4分

阪和線鶴ケ丘」駅 徒歩10分

大阪市阿倍野区阪南町5丁目の倉庫の詳細情報

設備条件
設備(その他)
    -
駐車場/月額
-/-
土地権利
所有権
国土法届出
不要
用途地域
商業
戸数
- / -
管理形態
-
管理員の勤務形態
-
管理会社
-
取引態様
仲介
引渡し
相談

大阪市阿倍野区阪南町5丁目の倉庫で募集中の物件

  1. 4階建

    46.05坪 (152.25㎡)

    7,180万円(155.92万円/坪)

よく見られている物件

  1. 八尾市水越6丁目

    - (167.06㎡)

    4,568万円

  2. 枚方市招提大谷3丁目

    - (468.54㎡)

    8,500万円

  3. 岸和田市内畑町

    - (293.89㎡)

    4,740万円

  4. 大阪市城東区東中浜1丁目

    - (673.23㎡)

    11,800万円

大阪市阿倍野区阪南町5丁目の倉庫

お気軽にお問い合わせください

無料お問い合わせ

株式会社ステージ

06-6356-4555

9:30~19:00

(休:日曜、祝日)