NEW

大阪市阿倍野区阪南町5丁目の倉庫 4階建

7,180万円

大阪府大阪市阿倍野区阪南町5丁目

地下鉄御堂筋線「西田辺」駅徒歩4分

阪和線「鶴ケ丘」駅徒歩10分

価格
7,180万円
間取り
-
土地面積
56.75㎡(17.16坪)
構造
鉄骨造
所在階 / 階建て
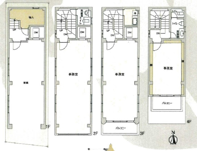
1-4階 / 4階建
所在地
大阪府大阪市阿倍野区阪南町5丁目
交通

地下鉄御堂筋線西田辺」駅 徒歩4分

阪和線鶴ケ丘」駅 徒歩10分

専有面積
152.25㎡(46.05坪)
用途地域
商業
築年月
1993年3月(築32年)

セールスポイント

建物面積約152.25㎡の鉄骨造4階建倉庫事務所 ◇大阪メトロ御堂筋線「西田辺」駅 徒歩3分 ◇シャッター付駐車場 ◇車2台駐車可能(※車種による)  ◇2階、3階、4階に事務室有 ◇荷物用エレベーター有

担当者のコメント

■鉄骨造3階建■土地面積 約17坪■平成5年3月築

基本情報

価格
7,180万円
修繕積立金
-
建物面積 /
専有面積
152.25㎡(46.05坪)
土地面積
56.75㎡(17.16坪)
バルコニー面積
-
その他面積
-
-
-
坪単価
155.92万円
間取り
-
向き
-
所在階 / 階建て
1-4階 / 4階建
築年月
1993年3月(築32年)
建物構造
鉄骨造
都市計画
市街化区域
用途地域
商業
地目 / 地勢
宅地 / -
建ぺい率 /
容積率
80% / 400%
駐輪場
-
私道負担面積
-
総戸数
-
土地権利
所有権
土地
(敷金 / 保証金)
- / -
国土法届出要否
不要
現況
空家
接道状況
-
取引態様
仲介
引渡
相談
管理員の
勤務形態
-
管理形態
-
管理会社 /
管理組合有無
- / -
その他
法令上の制限
防火地域
取引条件の
有効期限
2026年02月05日

設備条件

設備条件
設備(その他)
    -

その他

物件番号
99585942
管理コード
0-3-4
情報更新日
2026年01月22日
次回更新予定日
2026年02月05日
取扱会社
  • 株式会社ステージ
  • 大阪府大阪市北区天満2丁目8-17 天満橋パークビル 601号
  • TEL:06-6356-4555
  • 国土交通大臣 (1) 第10705号
  • 公益社団法人全日本不動産協会
    公益社団法人不動産保証協会
    不動産公正取引協議会連合会
備考
1F : 40.95mm 2F : 43.05m3F : 38.50m その他 : 29.75m、1階には清掃備品等の収納など様々な用途でご利用いただける物入有り、建ぺい率:80%・容積率: 400%ただし前面道路幅員により容積率252%に制限されます、水道:公営、ガス:都市ガス、汚水:本下水、雑排水:本下水

支払いシミュレーション

月々の支払額
9.6
購入希望物件価格
万円
頭金
万円
金利
%
返済額(ボーナス1回分)
万円
返済期間

※ボーナスは自動で年2回分で計算されます。

大阪市阿倍野区阪南町5丁目の倉庫

大阪市阿倍野区阪南町5丁目の倉庫

7,180万円

-

-(152.25㎡)

お気軽にお問い合わせください

無料お問い合わせ

株式会社ステージ

06-6356-4555

9:30~19:00

(休:日曜、祝日)