東大阪市長田東1丁目の一棟マンション 9階建

35,800万円

大阪府東大阪市長田東1丁目

地下鉄中央線「長田」駅徒歩7分

近鉄けいはんな線「荒本」駅徒歩17分

近鉄難波・奈良線「八戸ノ里」駅徒歩23分

価格
35,800万円
建物面積(坪数)
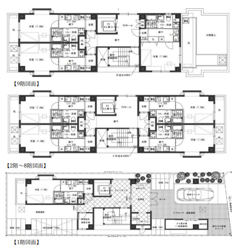
940.06㎡(284.36坪)
所在階 / 総戸数
1-9階/32戸
所在地
大阪府東大阪市長田東1丁目
交通

地下鉄中央線長田」駅 徒歩7分

近鉄けいはんな線荒本」駅 徒歩17分

近鉄難波・奈良線八戸ノ里」駅 徒歩23分

利回り
-
土地面積(坪数)
198.35㎡(60.00坪)
築年月
2014年3月(築11年)

セールスポイント

収益一棟売マンション 1K全32室 オール電化住宅 表面利回り5.1%

担当者のコメント

◆収益一棟売マンション 全32室 表面利回り5.1% 満室年収2037万円 長田駅徒歩5分

基本情報

価格
3億5,800万円
利回り
-
建物面積(坪数)
940.06㎡(284.36坪)
土地面積(坪数)
198.35㎡(60.00坪)
その他面積
-
-
-
土地権利
所有権
国土法届出要否
不要
地目 / 地勢
宅地 / 平坦
都市計画
市街化区域
用途地域
商業
建物構造 / 総戸数
鉄骨造 / 32戸
建ぺい率 /
容積率
80%/400%
築年月
2014年3月(築11年)
接道状況
-(南 公道 12.0m 間口 7.8m)
その他
法令上の制限
-
取引態様
仲介
現況
賃貸中
引渡し
即時
管理会社 /
管理組合有無
- / -
取引条件の
有効期限
2026年02月02日

設備条件

設備条件
設備(その他)
    -

その他

物件番号
79863128
管理コード
222-0-123-4
情報更新日
2026年01月19日
次回更新予定日
2026年02月02日
取扱会社
  • 株式会社ステージ
  • 大阪府大阪市北区天満2丁目8-17 天満橋パークビル 601号
  • TEL:06-6356-4555
  • 国土交通大臣 (1) 第10705号
  • 公益社団法人全日本不動産協会
    公益社団法人不動産保証協会
    不動産公正取引協議会連合会
備考
表面利回り5.1%、満室年収2,037万円、R5年9月19日現在空室1室、1階116.27㎡・2階113.57㎡・3階113.57㎡・その他656.77㎡、付帯権利:抵当権

支払いシミュレーション

月々の支払額
9.6
購入希望物件価格
万円
頭金
万円
金利
%
返済額(ボーナス1回分)
万円
返済期間

※ボーナスは自動で年2回分で計算されます。

東大阪市長田東1丁目の一棟マンション

東大阪市長田東1丁目の一棟マンション

35,800万円

-

-(940.06㎡)

お気軽にお問い合わせください

無料お問い合わせ

株式会社ステージ

06-6356-4555

9:30~19:00

(休:日曜、祝日)